Enhancing Daily Operations Beyond Emergencies
At Critical Response Group, we’ve long been committed to empowering first responders with our detailed emergency maps. Now, we’re expanding the reach of our innovative mapping technology with our newest offering:
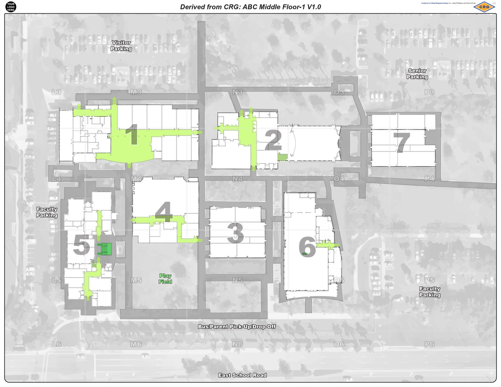
Internal Use Maps.
Designed exclusively for school and building administrators, these maps serve as a comprehensive tool for everyday, non-emergency operations.

Optimized for Facility & Administrative Use
Internal Use Maps leverage the same detailed floor plans and site maps that have made CRG’s emergency maps a trusted resource in times of crisis. However, these maps are tailored specifically for routine activities like:
- Space and facilities management
- Event planning for sports games, assemblies, and other school functions
- Staff planning and classroom/office assignments
- Marketing efforts, including website and school directories
By utilizing your existing CRG emergency maps for these internal functions, you’ll be equipped with precise, digital representations of your school or building, making your day-to-day operations smoother and more efficient.
Exclusively Available to Existing CRG Customers
Internal Use Maps are available only to current CRG customers and are created directly from the emergency maps we’ve already developed for your site. Rest assured, these maps are strictly to be used for internal purposes. They will not be distributed by CRG to public safety partners or shared beyond your administrative team.


Specialized Mapping Solutions
In addition to standard Internal Use Maps, we also offer two specialized overlay options:
- Fire/Evacuation Overlays: These include wayfinding symbology for evacuation routes and procedures, helping staff and visitors navigate efficiently in emergency situations.
- Reunification Overlays: These overlays are designed for tactical planning in reunification events, outlining command posts, shelter locations, rally points, and more.
A Versatile Solution for Every Initiative
Whether you’re organizing a school event, managing building renovations, or updating your facilities directory, Internal Use Maps from CRG will give you the flexibility and precision you need.
Interested in creating Internal Use Maps from your CRG’s? Contact our team today.


